Preservation of an
architectural-historical monument

  • HT Seesicht

Write with us Hotel History

Historical hotels, such as the Hotel Terrasse am See, are unique witnesses to Switzerland’s impressive tourism and architectural history. However, many historical hotels are in danger of being sold as speculative objects, as the maintenance of listed buildings is particularly expensive.

With the Hotel Terrasse am See In Vitznau, the Friends of Swiss Historic Hotels association has removed a first hotel from speculation in 2022.

The preservation of the historic hotel is not complete with the purchase. The architectural substance of the hotel will be carefully restored in the next step.

Thanks to these measures, it will be possible to operate the hotel on a self-sustaining basis. As a cultural asset of Swiss tourism history, the hotel will remain accessible to the general public in the long term, whether as part of the operation of the hotel, restaurant and bar, or on the occasion of events and public tours.

From Pension Rigibahn to Hotel Terrasse am See
«In 1873, the Hotel Pension Rigibahn was built. In 1929, a closed front building was added as a modern structure according to the plans of the architect Arnold Berger. This is one of the few particularly impressive architectural examples that document the treatment of early modernism with existing hotel buildings in central Switzerland. In 1999, the Hotel Terrasse was placed under cantonal protection. This testifies to its cultural and architectural significance for the canton of Lucerne.»

Benno Vogler, Conservation Officer Canton of Lucerne

Restoration and upgrading of the architectural jewel
«The hotel has undergone a number of changes in its 150-year history, while preserving its soul. It is a fulfilling task to continue these architectural traces in a responsible team. Preserving the existing structures reduces the consumption of resources and, together with durable, ecological materials, forms the basis for sustainable development.»

Edgar Steiner, Architect Brunnen

Rondell above the lake shines in historical splendour

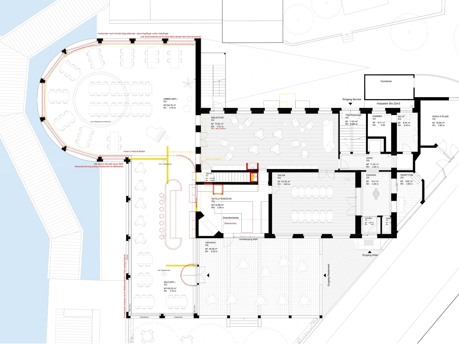
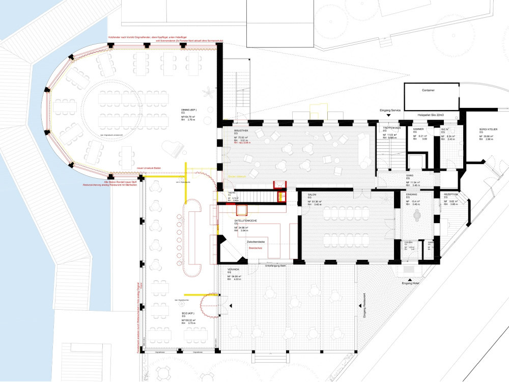
The supporting structure of the Rondell, which protrudes into the lake, is a highly remarkable concrete structure. The restoration of the original character of this architectural gem has been carried out with great attention to detail. The rather cool elements of the Neues Bauen, which are expressed, for example, in the concrete used, are contrasted with original, playful and sophisticated accents from the Arts and Craft movement, such as the colour tonality in the floor or in the mural.

Restoration of the original character
Cost statement for the refurbishment of the
«The renovation of this architectural gem was planned in close cooperation with the cantonal monument conservation authorities. We want the original character of 1930 to be experienced again.»

Anna Flückiger, Architect Christ & Gantenbein

Stylish places to meet and enjoy
Cost statement for the refurbishment of the lake restaurant (without total refurbishment of the kitchen)
Unique outdoor area

Budget and financing

We are dependent on the support of private individuals and foundations so that we can realise the project. Until 28 February 2026, you have the unique opportunity to become a shareholder of the hotel and support the upcoming renovation project with your investment. You can find more information here (only in German).

You can find more detailed information on the overall project in our dossier (only in German).

Budget overview of overall project
Financing plan
Knowledge. Security. Communication.